歴史と伝統が色づく街・金沢の“新しいおもてなし”を
Genelecサウンドが彩る
– OTM Restaurant & Bar

店舗で耳に入る音楽は
気付かないうちにそのお店の印象に影響を与えている
マイクログリーンとは、発芽して1〜3週間くらいの若芽野菜のこと。その5cmにも満たない⼩ぶりの野菜には、ビタミンC、ビタミンK、ビタミンE、ルテイン、カロテノイドが成熟した野菜に⽐べて5倍以上も含まれていて、カルシウムや亜鉛、マグネシウムなどのミネラルも⾮常に豊富です。
OTMはこのマイクログリーンを自社栽培し、それを使用したパスタやサンドイッチ、バスクチーズケーキなどのメニューを提供するレストランです。また、フレッシュなマイクログリーンを練り込んだギルトフリーアイスクリームもラインナップ。モノトーン基調の落ち着いた店内に、美しいマイクログリーンの料理が美味しく映えます。

「お店としては、オープンしたばかりなので、まだ試行錯誤しながら運営しています。私たちとしては、ゆくゆくは地元の方が立ち寄って、ゆっくりくつろげる場所にしていきたいなと」
そう語るのは、OTMを経営する株式会社サビーのPR/マーケティング担当・宮本侑佳さん。「店舗で耳に入る音楽は、気付かないうちにそのお店の印象に影響を与えていると思っています」と宮本さんは言います。OTMで、そんな重要な“音を出す役割”を担っているのが、Genelecのスピーカー。聞けば、同社代表取締役会長の山﨑氏が、東京のギャラリーでたまたまGenelecスピーカーのサウンドを聴いたのがきっかけで、採用することになったそうです。

「東京にGenelecのスピーカーを導入されているアートギャラリーがあり、山﨑がそこに訪れた際に音の良さを体感し、当時計画が進んでいたこの店舗で採用したいということになりました。これまで、店舗作りで音響は最後に決める部分でした。設計段階からスピーカーありきで進んでいったのは、今回が初めてです」
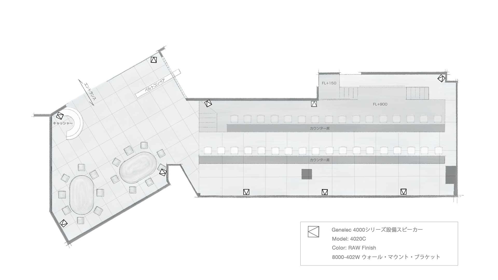
ここから、同社とジェネレックジャパンの間で、店舗の平面図を元に音響プランのやり取りがなされ、最終的に「4020C」を10台使用する構成に落ち着きました。そして、このOTMでは合計10台の「4020C」がユーロブロックでカスケード接続され、スムーズな配置を実現しています。

同じテーブル内での会話はちゃんと聴こえるが
周囲の会話は気にならないくらいのバランス。
まさにこれを実現するスピーカー
「せっかく良いスピーカーを導入したので、お店の特長の一つとして、音の良さもアピールしていきたいと考えています」と語る宮本さん。店舗で使うスピーカーの“音の良さ”について、「会話の邪魔をしないサウンドであることが重要」と説明します。
「同じテーブル内での会話はちゃんと聴こえますが、周囲の会話は気にならないくらいのバランス。まさにこれを実現するスピーカーを求めていたので、Genelecのサウンドはぴったりです。あと大前提として、音楽を心地よく聴けるのが魅力ですね。変に響かず、音の感触が良いと言うのでしょうか。個人的には、低音が心地よく、カドがなくて聴きやすいなと思っています」

音楽の再生操作には、店舗に置いてあるiPadを使用。「iPadで簡単に運用できるので、とても楽です」と宮本さんは嬉しそう。具体的には、「4020C」に音声を出力するミキサーが店内に設置されていて、そこにiPad内のプレイリストをBluetooth伝送して再生している形です。ちなみにこのプレイリスト、山﨑氏が店舗の雰囲気や時間帯に合わせて作成しているんだそうです。

「ランチタイムは観光客のほか、女性がお一人でお茶をしにくることも多いので、和やか系の楽曲が多いですね。夜はバータイムになるので、打ち込みのカッコいい系の楽曲とかヒップホップなんかもラインナップに入ってきます。あと今後は夜のバータイムで、お客様の需要に合わせてDJタイムも設けたいと思っているんですよ」
そう、OTMの店内にはDJブースも常設されているんです。「音の良いスピーカーを設置したので、せっかくなら最大限に音楽を楽しみたい」との思いで、パイオニアのDJシステムを導入。店舗の運営がある程度落ち着いたら、DJブースを稼働させる予定だそうですが、OTMの店員にはDJができるメンバーもいて、「早くDJタイムをやって欲しい」という声が多いとか。実際、DJシステムは上述のミキサーにすでに接続されていて、準備は万端です。
「海外からの観光客の方が、夕食を済ませて“あともう一杯”という時に、DJタイムのOTMを訪れ、グルーブ感のある音楽に包まれて金沢の夜を楽しむ……みたいな使い方も良いんじゃないかと。私共としても、こんな風に音を中心に運用を考えている店舗は初めてです。Genelecのスピーカーを導入して、飲食店において音は大事な要素だと改めて思いますね」

関連製品
導入事例 | 設備/店舗音響
Roxy Hotel - Smart IPで音楽をクールに楽しむ
「“クオリティ"という概念を伝えたい時、Genelecは最良の選択」― マンハッタンの4つ星ホテルがSmart IPを選んだ理由とは?
BRIAN ENO AMBIENT KYOTO - Genelecが空間をよりクリエイティブにする
Genelec が空間をよりクリエイティブにする。世界的な展覧会でGenelecが選ばれる理由とは?